Βασικές πτυχές αρχιτεκτονικα σχεδια σπιτιων 80τμ, κατά το σχεδιασμό μιας αρχιτεκτονικα σχεδια σπιτιων 80 τετραγωνικών μέτρων, είναι σημαντικό να ληφθούν υπόψη διάφορες πτυχές για τη βελτιστοποίηση της αξιοποίησης του χώρου και τη δημιουργία ενός άνετου και λειτουργικού περιβάλλοντος διαβίωσης.
Η οικοδόμηση ενός σπιτιού απαιτεί μακρύ και προσεκτικό σχεδιασμό, όπως η επιλογή ενός σχεδίου που είναι κατάλληλο και σύμφωνα με τις ανάγκες σας. Αν έχετε μεγάλη οικογένεια, αυτή τη φορά η λύση σχεδιασμού μπανγκαλόου είναι εξοπλισμένη με μια ζεστή βεράντα, έναν καταπράσινο κήπο και έναν άνετο οικογενειακό χώρο.
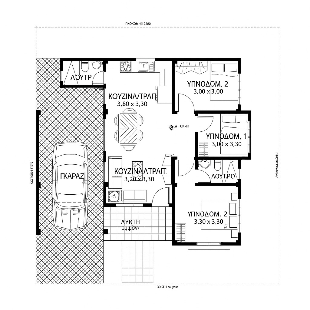
Εδώ, βρίσκεται σε μια αρκετά μικρή έκταση, αλλά εξακολουθεί να εξοικονομεί πολύ χρήσιμο χώρο για την οικογένεια αρχιτεκτονικα σχεδια σπιτιων 80τμ με Άνετο Οικογενειακό Χώρο | 3 Υπνοδωμάτια + Κάτοψη.
Αρχιτεκτονικα σχεδια σπιτιων 80τμ: Έξυπνος σχεδιασμός για μικρούς χώρους στην Ελλάδα
Αυτή η κατοικία έχει σχέδιο κατασκευής κάτω των 80 τμ. Αποτελείται από 2-3 υπνοδωμάτια, 1-2 μπάνια, σαλόνι και κουζίνα με εκτιμώμενο κόστος €25.000. Ακολουθούν ορισμένα βασικά στοιχεία που πρέπει να έχετε κατά νου:
Αρχιτεκτονικό Σχέδιο Σπιτιού
- ΣΑΛΟΝΙ
- ΤΡΑΠΕΖΑΡΙΑ
- ΚΟΥΖΙΝΑ
- 2 ΜΠΑΝΙΑ
- ΕΞΩΤΕΡΙΚΟΣ ΧΩΡΟΣ ΠΛΥΝΤΗΡΙΟΥ
- 3 ΥΠΝΟΔΩΜΑΤΙΑ
- ΒΟΗΘΗΤΙΚΟΣ ΧΩΡΟΣ
- ΜΙΝΙ ΚΗΠΟΣ
- ΒΕΡΜΟΥΔΑ
- ΒΡΩΜΙΚΗ ΚΟΥΖΙΝΑ
- ΣΤΑΘΜΕΥΣΗ ΓΙΑ ΑΥΤΟΚΙΝΗΤΑ




Ένα σπίτι-μπανγκαλόου που σε κάνει να χαίρεσαι που το έχεις, επειδή αξιοποιεί κάθε χώρο σε κάτι καλό, αν και πολλά δωμάτια έχουν τοποθετηθεί γυάλινα παράθυρα που είναι σε θέση να παρέχουν καλή κυκλοφορία αέρα και φυσικό φως από το ηλιακό φως.
Ανοιχτή και Αποδοτική Διάταξη
Μια ανοιχτή και αποτελεσματική διάταξη μεγιστοποιεί το φυσικό φως και δημιουργεί μια αίσθηση ευρυχωρίας. Σκεφτείτε το ενδεχόμενο να εξαλείψετε τους περιττούς τοίχους και να ενσωματώσετε μεγάλα παράθυρα για να συνδέσετε τους χώρους καθιστικού, την κουζίνα και την τραπεζαρία. Με αυτόν τον τρόπο, μπορείτε να βελτιώσετε τη ροή της κίνησης και να βελτιώσετε τη συνολική βιωσιμότητα του σπιτιού.
Έξυπνη Κατανομή Δωματίων
Κατανείμετε τον χώρο με σύνεση για να φιλοξενήσετε όλα τα απαραίτητα δωμάτια, διατηρώντας παράλληλα ένα άνετο μέγεθος για το καθένα. Δώστε προτεραιότητα σε βασικούς χώρους όπως υπνοδωμάτια, μπάνια και κουζίνα. Σκεφτείτε δωμάτια πολλαπλών χρήσεων που μπορούν να εξυπηρετήσουν πολλαπλές λειτουργίες, όπως ένα γραφείο επισκεπτών ή έναν χώρο παιχνιδιού στο σαλόνι.
Λειτουργική Κουζίνα και Μπάνια
Η κουζίνα είναι η καρδιά του σπιτιού, γι’ αυτό βεβαιωθείτε ότι είναι καλά σχεδιασμένη και εξοπλισμένη με άφθονο αποθηκευτικό χώρο, χώρο στον πάγκο και αποδοτικές συσκευές. Μεγιστοποιήστε το φυσικό φως τοποθετώντας παράθυρα πάνω από τον νεροχύτη ή την περιοχή μαγειρέματος. Τα μπάνια θα πρέπει να σχεδιάζονται για λειτουργικότητα και άνεση με επαρκή αποθηκευτικό χώρο, σωστό αερισμό και φιλικά προς το χρήστη εξαρτήματα.
Φυσικός Φωτισμός και Αερισμός
Ο φυσικός φωτισμός όχι μόνο φωτίζει το σπίτι, αλλά μειώνει και την κατανάλωση ενέργειας. Τοποθετήστε τα παράθυρα και τις πόρτες στρατηγικά για να απορροφούν το μέγιστο ηλιακό φως και να δημιουργούν έναν καλά φωτισμένο χώρο διαβίωσης. Ο σωστός αερισμός είναι εξίσου σημαντικός για να διατηρήσετε μια υγιή και άνετη ατμόσφαιρα. Ενσωματώστε τον εγκάρσιο αερισμό τοποθετώντας παράθυρα σε απέναντι τοίχους για να προωθήσετε τη ροή του αέρα.
Λύσεις Αποθήκευσης
Οι προσεγμένες λύσεις αποθήκευσης είναι απαραίτητες σε κάθε σπίτι, ειδικά σε μικρούς χώρους. Αξιοποιήστε τον κάθετο χώρο με ψηλά ντουλάπια και ράφια, ενσωματώστε κρυφό αποθηκευτικό χώρο κάτω από σκάλες ή σε αχρησιμοποίητες γωνίες και σκεφτείτε έπιπλα πολλαπλών χρήσεων με ενσωματωμένα διαμερίσματα αποθήκευσης.
Εξωτερική Διαβίωση
Εάν είναι δυνατόν, σκεφτείτε να συμπεριλάβετε έναν εξωτερικό χώρο, όπως ένα μικρό μπαλκόνι, αίθριο ή αυλή. Αυτό παρέχει μια επέκταση του χώρου διαβίωσης και βελτιώνει τη συνολική ποιότητα ζωής, ειδικά σε αστικά περιβάλλοντα.
Ενεργειακή Απόδοση
Ενσωματώστε χαρακτηριστικά εξοικονόμησης ενέργειας στην κάτοψή σας χρησιμοποιώντας ενεργειακά αποδοτικές συσκευές, εγκαθιστώντας κατάλληλη μόνωση και λαμβάνοντας υπόψη βιώσιμα δομικά υλικά. Αυτά τα μέτρα όχι μόνο μειώνουν το κόστος κοινής ωφέλειας, αλλά συμβάλλουν και στην προστασία του περιβάλλοντος.
Εξατομίκευση και Διακόσμηση
Ενώ η κάτοψη θέτει τα θεμέλια, μην ξεχάσετε να εξατομικεύσετε το σπίτι σας με διακόσμηση που αντανακλά το στυλ και τις προτιμήσεις σας. Επιλέξτε έπιπλα, φωτισμό και αξεσουάρ που συμπληρώνουν το συνολικό σχεδιασμό και δημιουργούν έναν άνετο και φιλόξενο χώρο διαβίωσης.
Θυμηθείτε, το κλειδί για μια επιτυχημένη κάτοψη σπιτιού 80 τετραγωνικών μέτρων έγκειται στον προσεκτικό σχεδιασμό, την αποτελεσματική αξιοποίηση του χώρου και την προσοχή στη λεπτομέρεια. Λαμβάνοντας υπόψη αυτές τις βασικές πτυχές, μπορείτε να δημιουργήσετε ένα άνετο, λειτουργικό και κομψό σπίτι που ανταποκρίνεται στις συγκεκριμένες ανάγκες σας και βελτιώνει την ποιότητα ζωής σας.